This page needs JavaScript activated to work. Treasure Trove | CeylonProperty.lk

Treasure Trove

Cotta Road


15408

Starting from 33 Million LKR

Floors


14

Sqft Range


530 - 2550 ft2

Bedroom Range


1 - 5

Completion Date


2020

No of Units


77

Property Details

The city of Colombo has changed over the years. The skyline, the buildings, service centers, places of entertainment, shopping arcades, the parks, and even the fauna and flora of the surrounding areas have shifted the axis of the city. However there is one thing about the city which has not changed over the years. That is the desire and the wish of the affluent, the powerful and the so called game changers to be at the Center of activities in the City. Whilst the average are at the peripheries, the rich and powerful are at the city gates and within the Halls at the Center defining the very course of business, commerce and politics of the country. The very concept of Treasure Trove Residencies came about to meet your need to be at the Center… We chose the ideal location which has a rich heritage both literally as well as figuratively. “Treasure House” in Borella is a historic and iconic place renowned for Antiques in Colombo and in Sri Lanka. The architectural concept (Interiors and exterior) will have a touch of Colonial and Victorian flair making it stand out of conventional apartment projects in the city.

Amenities


Pool


Automated Elevators


Multi Gym


Club House


Dedicated Parking


Backup Generator


24 Hours Security


CCTV Monitoring


Daily Garbage Collection

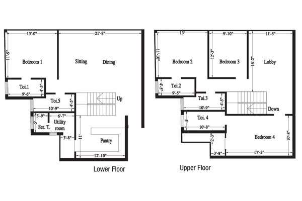
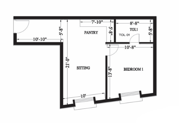
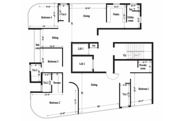
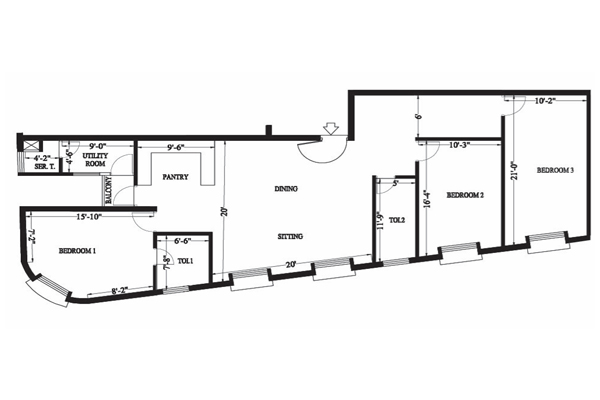
Floorplans



Bedrooms : 3
Bathrooms : 3
Floor Area : 1160 Sqft.


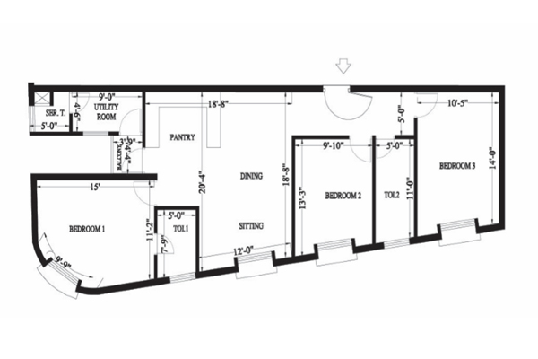
Bedrooms : 3
Bathrooms : 3
Floor Area : 1190 Sqft.


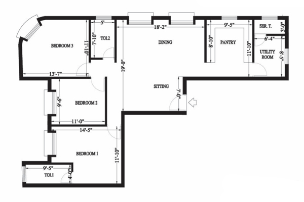
Bedrooms : 2
Bathrooms : 2
Floor Area : 830 Sqft.


Bedrooms : 2
Bathrooms : 2
Floor Area : 930 Sqft.


Bedrooms : 2
Bathrooms : 3
Floor Area : 1150 Sqft.


Bedrooms : 2
Bathrooms : 2
Floor Area : 830 Sqft.


Bedrooms : 3
Bathrooms : 3
Floor Area : 1170 Sqft.


Bedrooms : 1
Bathrooms : 1
Floor Area : 530 Sqft.


Bedrooms : 4
Bathrooms : 4
Floor Area : 2550 Sqft.


Bedrooms : 3
Bathrooms : 3
Floor Area : 1615 Sqft.


Bedrooms : 4
Bathrooms : 4
Floor Area : 2060 Sqft.


Bedrooms : 5
Bathrooms : 5
Floor Area : 2095 Sqft.


Bedrooms : 3
Bathrooms : 3
Floor Area : 1615 Sqft.


Bedrooms : 4
Bathrooms : 4
Floor Area : 1626 Sqft.


Bedrooms : 3
Bathrooms : 3
Floor Area : 1520 Sqft.


Bedrooms : 4
Bathrooms : 4
Floor Area : 1400 Sqft.

Developer Profile

Inaugurated in 2003 by four individuals who shared a vision of creating a company that became the undisputed leader in offering a spectrum of key and complementary property services while uplifting the quality of life of all those they served, Home Lands (Pvt) Ltd. conquered the real estate industry like a wild fire in Sri Lanka. Obtaining the No.1 position as the undisputed leading company of the industry, our service network expanded up to 07 branches covering lavish real estate regions on the island. As a flagship entity of Home Lands Holdings, Home Lands Skyline (Pvt) Ltd. stretched its wings beginning from 2015, covering all the strategic locations in Sri Lanka: Colombo 05, Colombo 08, Malabe, Rajagiriya, Nawala, Battaramulla, Thalawathugoda, Piliyandala, and Kottawa, marking its own identity by constructing exquisite and uncompromisingly luxury spaces for the influential local and international masses. Our journey, started with a small crew with a big mission ahead was not easy, yet with the strength of the foundation laid, we’ve built a whole new universe on it.



Contact Developer

Home Lands Skyline 45 Calls Generated
+947XXXXXXXX Click here to show contact info

Email Developer

This advertisement is posted on the Ceylon Property.lk by the mentioned advertiser. As Ceylon Property.lk has no affiliation with property advertisers, we are not responsible for the accuracy of the ad's content and we are unable to guarantee their services or we are not responsible for services provided by the advertisers. We as Ceylon Property.lk only provide the platform for the advertisers to list their properties. You will be contacting the advertiser (Property Owner/ Real Estate broker/ Agency/ Developer) of this property directly. We advise you to take precaution when making any payments or signing any agreements and be alert of any possible scams. If making any payments we recommend that you have two permanent & verified methods of contact of the payment receiver such as their landline number and home/business address. For more information, please check our Terms of use.

Posted / edited: 5 years ago


Discover a place you'll love to live


Rent - Apartment Popular Searches

Buy – Apartment Popular Searches

Land Popular Searches

Apartment Colombo

Apartments Colombo

Apartments in Colombo

Apartment in Colombo

Find your dream Land and Lands for Sale in Sri Lanka

Land in Colombo

Lands in Colombo

Lands for Sale in Colombo

Commercial Real Estate Properties

Commercial Buildings

Commercial Properties for Sale in Sri Lanka

Commercial Property for sale in Sri Lanka

Apartment Sale Links

Apartment Rent Links