This page needs JavaScript activated to work. Austville | CeylonProperty.lk

Austville

No 30 Moors Road


8543

Starting from 36.33 Million LKR

Floors


8

Sqft Range


794 - 1502 ft2

Bedroom Range


2 - 4

Completion Date


2027

No of Units


22

Property Details

Austville offers an exclusive collection of just 22 apartments, ranging from 794 to 1,502 square feet, with prices between 36 million and 63 million. The development features thoughtfully designed one- to three-bedroom units, blending comfort, style, and practicality. Each apartment boasts spacious interiors, meticulous finishes, and breathtaking sea views, creating a sophisticated living experience.

Designed for modern city living, Austville’s amenities include a scenic rooftop perfect for relaxation, a high-speed elevator, and a backup generator ensuring power for common areas. Additional conveniences include air conditioning provisions, a comprehensive fire detection system, and individual letterboxes. Security is a top priority, with 24/7 CCTV surveillance providing residents with peace of mind.

Property Features

2 Level Parking



Amenities


Automated Elevators


Dedicated Parking


24 Hours Security


CCTV Monitoring


Daily Garbage Collection

Floorplans



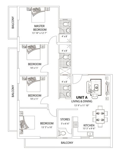
Bedrooms : 4
Bathrooms : 2
Floor Area : 1502 Sqft.


Bedrooms : 3
Bathrooms : 2
Floor Area : 1272 Sqft.


Bedrooms : 2
Bathrooms : 2
Floor Area : 794 Sqft.


Bedrooms : 3
Bathrooms : 2
Floor Area : 1165 Sqft.

CONNECTIVITY

New Delmon Hospital


Holy Family Convent


Cargills Food City


Developer Profile View Developer Website

JAG Group is a seasoned real estate developer with over 15 years of experience in Sri Lanka’s property market. Known for its commitment to quality and luxury, the company has successfully delivered six projects, including the upcoming Austville development. With a strong focus on excellence and innovation, JAG Group continues to shape Colombo’s real estate landscape, offering premium living spaces for modern investors and homeowners.



Contact Developer


Email Developer

This advertisement is posted on the Ceylon Property.lk by the mentioned advertiser. As Ceylon Property.lk has no affiliation with property advertisers, we are not responsible for the accuracy of the ad's content and we are unable to guarantee their services or we are not responsible for services provided by the advertisers. We as Ceylon Property.lk only provide the platform for the advertisers to list their properties. You will be contacting the advertiser (Property Owner/ Real Estate broker/ Agency/ Developer) of this property directly. We advise you to take precaution when making any payments or signing any agreements and be alert of any possible scams. If making any payments we recommend that you have two permanent & verified methods of contact of the payment receiver such as their landline number and home/business address. For more information, please check our Terms of use.

Posted / edited: 9 months ago


Discover a place you'll love to live


Rent - Apartment Popular Searches

Buy – Apartment Popular Searches

Land Popular Searches

Apartment Colombo

Apartments Colombo

Apartments in Colombo

Apartment in Colombo

Find your dream Land and Lands for Sale in Sri Lanka

Land in Colombo

Lands in Colombo

Lands for Sale in Colombo

Commercial Real Estate Properties

Commercial Buildings

Commercial Properties for Sale in Sri Lanka

Commercial Property for sale in Sri Lanka

Apartment Sale Links

Apartment Rent Links